Masterthesis
Wintersemester 2018/19

New Bloomsbury College London

Lehrende

Prof. Christoph Kuhn

Dipl.-Ing. Mark Etling

Kurzbeschreibung der Aufgabe

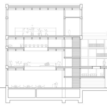
Ein College, also einen Ort der Gemeinschaft gilt es zu entwerfen, in Mitten von Londons Kultur- und Universitätszentrum Bloomsbury. Ein neues College zum gemeinsame Lernen, Wohnen, Sport treiben, zum individuellen Entspannen und Abschalten. Zugleich ein neuer zentraler öffentlicher Treffpunkt auf dem Campus des University College of London.Wir möchten mit diesem Projekt die Frage nach einer eigentlich gar nicht neuen Art des Studierens aufwerfen, die in der historischen Entwicklung der europäischen Universitäten ursprünglich bereits angelegt ist. Ein Studieren, das den aktuellen Tendenzen der Isolierung und Trennung von Lehrenden und Lernenden, Arbeitszeit und Freizeit, körperlicher und geistiger Tätigkeit entgegen wirkt. Wir suchen auf diese Fragen eine architektonische Antwort. Eine Antwort auf die Bedingungen der funktionalen Abläufe mit ihren wechselseitigen Beziehungen und deren räumliche Übersetzung.

Marc Ritz

Sarah Herzog

Robin Kuppler