Bachelorentwurf
Wintersemester 2015/16

Aufstockung in Darmstadt

Entwurf III


Lehrende
Prof. Christoph Kuhn
Dipl.-Ing. Mark Etling
Dipl.-Ing. Elisabeth Klein
Dipl.-Ing. David Sauerwein (Koordination)

Bild vorh. S.: Gemeinfrei


Aufgabe (Auszug aus der Aufgabenstellung)

Die Aufstockung städtischer Häuser in Darmstadt ist angesichts des mangelnden Wohnraums, des teuren und knappen Bodens sowie der vergleichsweise geringen städtischen Dichte ein wich- tiger Beitrag zu aktuellen städtebaulichen und demographischen Entwicklungsfragen.

Die Strategie der Aufstockung zur Gewinnung von mehr Raum in städtischen Überbauungen ist keineswegs neu. Vielmehr ist sie das Resultat ökonomischer und pragmatischer Überlegungen, welche eine bauliche Aufstockung dem teureren und aufwendigeren Abriss und Neubau vorziehen. Aufstockungen sind deswegen seit jeher Teil „natürlicher“ Verstädterungsprozesse.

Während zeitgenössische Aufstockungen gerne als Addition auf ein Haus „gesetzt“ werden und sich entsprechend deutlich vom Altbau abheben, war es Baumeistern und Architekten in früheren Zeiten ein Anliegen, das neue Volumen mit dem Altbau zu „verschmelzen“. Historische Aufstockungen fallen deswegen heute kaum auf. Denn entweder war die Fassade und Volumetrie der Aufstockung an die unten liegende Architektur in Materialwahl, Befensterung und Konstruktion derart angeglichen, dass die Aufstockung kaum in Erscheinung trat, oder sie ergänzte als „Krone“ den fehlenden architektonischen Abschluss der bestehenden Architektur.

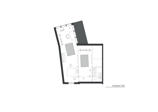
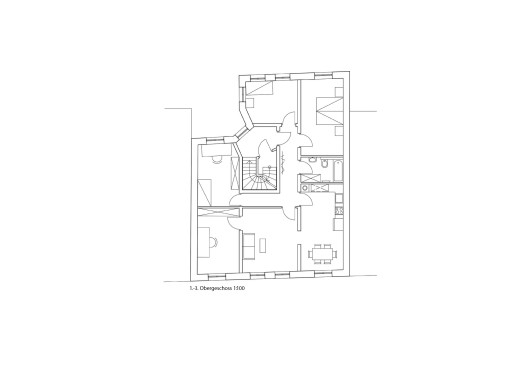
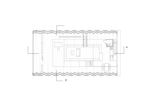
Ihre Aufgabe besteht darin, ein Wohnhaus am Taunusplatz im Bearbeitungsperimeter aufzustocken. Grundlage für die Wahl des aufzustockenden Hauses bilden vertiefte städtebauliche und architektonische Analysen. Folgende Fragen gilt es zu beantworten: Wie hoch wird die Aufstockung sein? Reicht ein Geschoss, oder verdoppeln Sie gar die Höhe der bestehenden Volumetrie? Welches Haus soll durch die Aufstockung einen Bedeutungsgewinn erlangen? Wie verändert die Aufstockung den bestehenden Charakter des Hauses? Wie verhält sich das Neue zum Alten? Ist die Aufstockung eine volumetrische Erhöhung des Bestandes oder setzt sie sich deutlich davon ab?

Samia Alzuabi, Stanislaus Ruff

 

 

 

 

Max Brummer. Mihrap Özdemir

 

 

 

 

Clara Großmann. Clara Poursedighi

 

 

 

 

Manuel Kinscherf, Alexander Lisek

 

 

 

 

Charlotte Patzwahl, Daniela Hoffmann

 

 

 

 

Yessim Loos, Christina Armanious