Integrierter Entwurf, Entwurf/Vertieferentwurf
Wintersemester 2014/15

Teilen, Werken, Wandeln – Nachhaltigkeit ist permanente Anpassung


Lehrende
Prof. Christoph Kuhn
Dipl.-Ing. Thorsten Burgmer
Dipl.-Ing. David Sauerwein (Koordination)
Dipl.-Ing. Mark Etling

Bild vorh. S.: Gemeinfrei


Eines der wichtigsten Phänomene in der Natur ist die Fähigkeit zur Anpassung an ein sich ständig veränderndes Umfeld. Anpassung und Veränderung bedingen sich dabei gegenseitig. Dieses Wechselspiel ist der ständige Antrieb für Weiterentwicklung, Optimierung und Erfindung. Das natürliche Ergebnis ist in der Regel das Teilen der Aufgaben mit dem Ziel, Synergien zu erzeugen. Alles, alleine, zu jeder Zeit verfügbar, ist auf Dauer keine tragfähige Strategie.

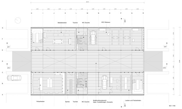
Der Entwurf thematisiert diesen Prozess am Beispiel eines temporären Werkstattgebäudes. Das zu entwerfende Gebäude selbst ist dabei ein Labor sozialer und räumlicher Anpassungsfähigkeit bis zur möglichen rückstandslosen Selbstauflösung.

Damit deutlich wird, dass es sich dabei nicht um Luftschlösser handelt, kooperieren wir mit der realen Bauwelt. Die Fa. Goldbeck hat das Bauen mit System zu seiner obersten Maxime erklärt. Der Systemgedanke öffnet die Tür zur Fähigkeit der Anpassung. Er trägt aber auch die Gefahr in sich, Halt gebende Konstanten zu vernachlässigen und sich in Beliebigkeit zu verlieren.

Gesucht wird mit diesem kleinen Projekt ein architektonischer Ausdruck, der den scheinbaren Widerspruch von Dauerhaftigkeit und Wandel thematisiert.

Patrik Frey

 

 

 

 

 

 

 

 

Alexander Heinelt

 

 

 

 

 

 

 

 

Max Ischreyt

 

 

 

 

 

 

 

 

Marc Oliver Legat

 

 

 

 

 

 

 

 

Oktavian Lupowski

 

 

 

 

 

 

 

 

Aamie Perera