Vorlesung und Übung
Sommersemester 2016

Klima- und Nutzungsgerechtes Bauen – Fachmodul F

Lehrende
Prof. Christoph Kuhn
Prof. Anett-Maud Joppien
Dipl.-Ing., M.Sc. David Sauerwein


Das Pflichtmodul F besteht aus einer Übung zum klima- und nutzungsgerechten Bauen und wird thematisch durch eine Vorlesungsreihe begleitet. Die Übung gliedert sich in zwei Blöcke: Im ersten Teil werden aus Klimaanalysen verschiedener Orte in verschiedenen Klimazonen spezifische Planungsstrategien abgeleitet.

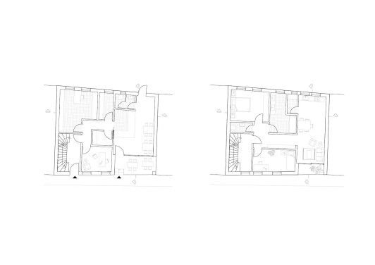
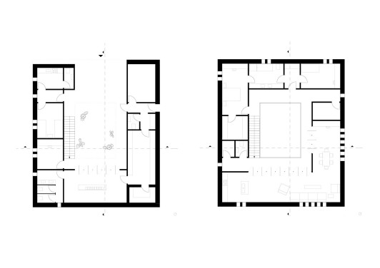
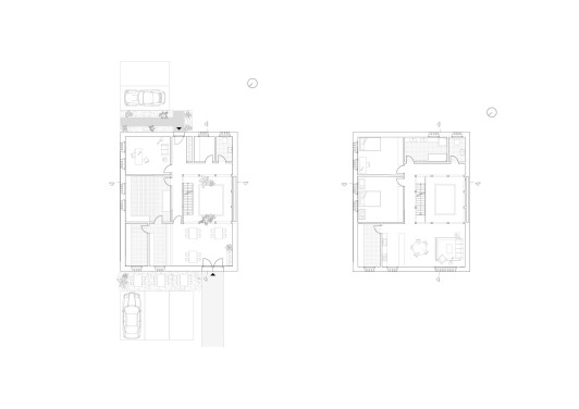
Die Beschäftigung mit autochthonen Bautypen aus unterschiedlichen Klimazonen liefert wertvolle Erkenntnisse zum klimagerechten Bauen.

Im zweiten Teil der Aufgabe sollen die zuvor definierten Planungsregeln in einer kleinen Entwurfsaufgabe angewendet werden.

Übung – Eisdiele

Manon Jochem, Sarah Papperitz

 

 

 

 

 

 

 

 

Nathalia Nehm, Magnus Reich