Entwurf
Sommersemester 2014

Enko IV

Aufgabe

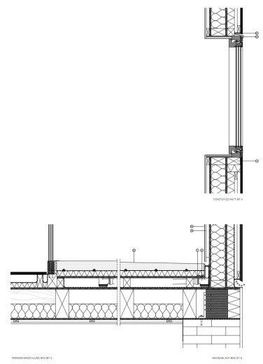
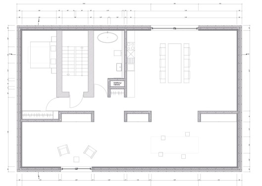
Aufbauend auf der Entwurfsaufgabe „Aufstockung“ des vorigen Semesters, soll im „Entwurf IV“ eine konstruktive Durcharbeitung erfolgen. Jetzt wird schon fast gebaut: Die Baubehörde hat der Planung bereits zugestimmt, die Kosten sind berechnet, viele räumliche Varianten und Diskussionen mit dem Bauherren liegen hinter uns. Nun ist es das Ziel, den Entwurf bis ins kleinste Detail zu konstruieren und eine ausführungsreife Werkplanung zu erstellen. Die Aufgabe wird in den Zwischenschritten Konstruktion, Fassade und Ausbau bearbeitet.

Bild vorh. S.: Karakurt, Schinzel

Closs, Heim

 

 

 

 

Karakurt, Schinzel

 

 

 

 

Afrasiabian, Groebler